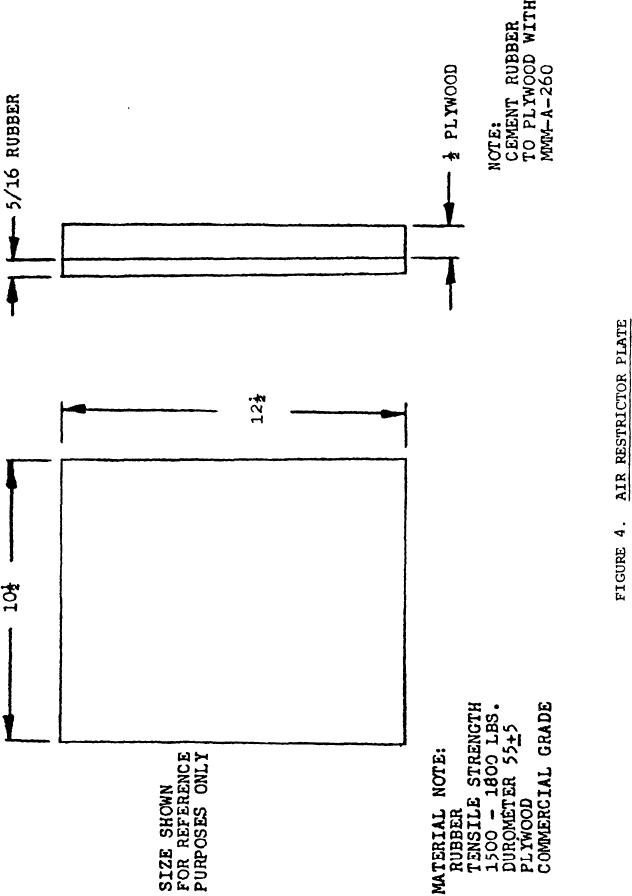
MIL-D-63370 Dispenser, Mine Ground Vehicle, M128 Preparation For Shipment And Storage OfThis specification provides the general requirements for the preservation, packaging, packing and marking for the M128 Ground Vehicle Mine Dispenser and shall hereafter be referred to as processing.